
用途
该机主要应用于制药工业固体物料及料斗的楼层上下输送。同时在制药、化工、食品等行业中广泛使用。
原理
该机主要由底盘、立柱、提升系统等部件组成。工作时,先将物料装入或料斗推入提升平台上,然后拄下提升按钮,平台提升,平台到位后搬出物料或推出料斗到所需的位置。
特点
该机是我公司广泛吸收、消化国外先进技术,结合国情研发成功的新机型,结构合理,性能稳定,操作方便,整机无死角,无外露螺钉。解决了药厂楼层上下物料输送的困难,符合药品生产的
GMP要求。
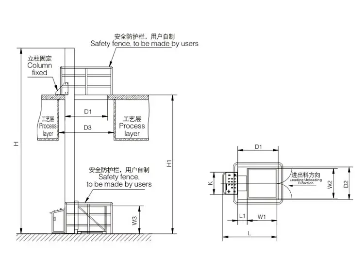
技术参数

本公司可按用户特殊要求定制生产,如有变动,恕不预先通知!